登录
注册
手机版
用手机扫一扫
会员中心
首页
集团业务
房源出售
房源出租
商砼销售
新能源开发
物业服务
文旅产品
集团商城
房源出售
房源出租
建材销售
新能源开发
物业服务
文旅产品
新闻资讯
新闻
党建
公告
关于豫建
分享
盛世蓝城
盛世蓝城
分享
收藏
概述
更新日期:
2021年9月14日
35.02%
2.20
2424
产品详情
产品地址
属性
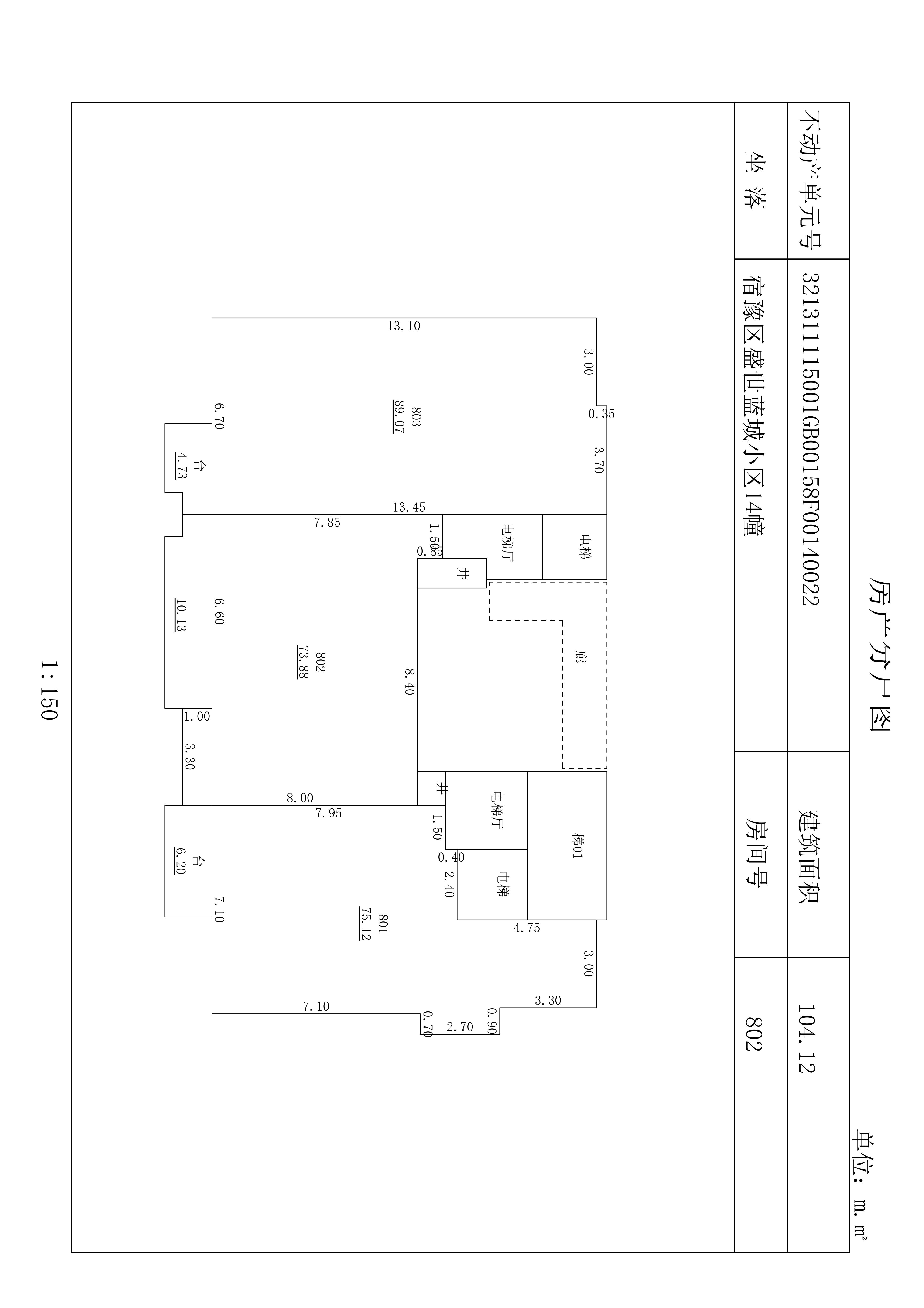
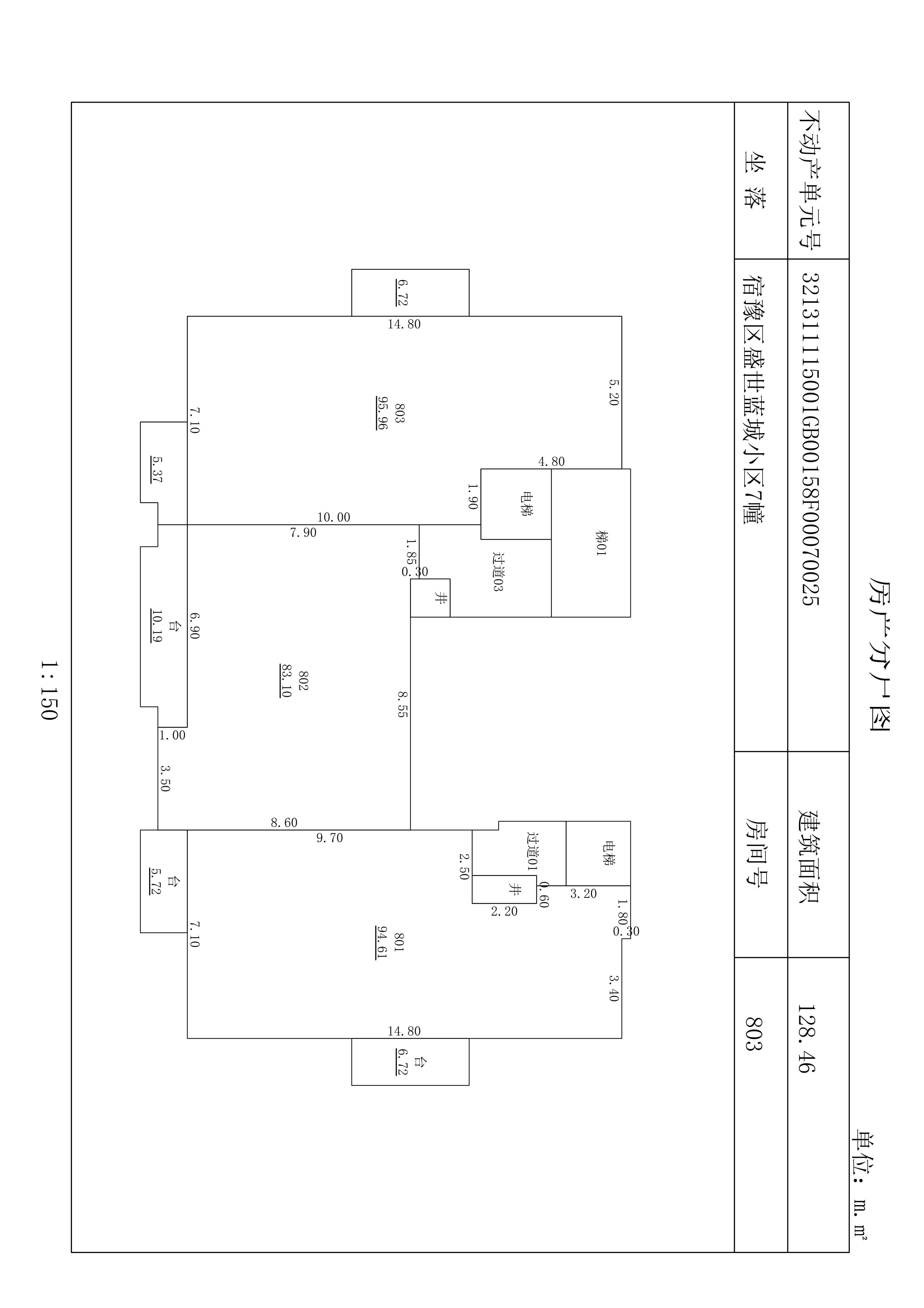
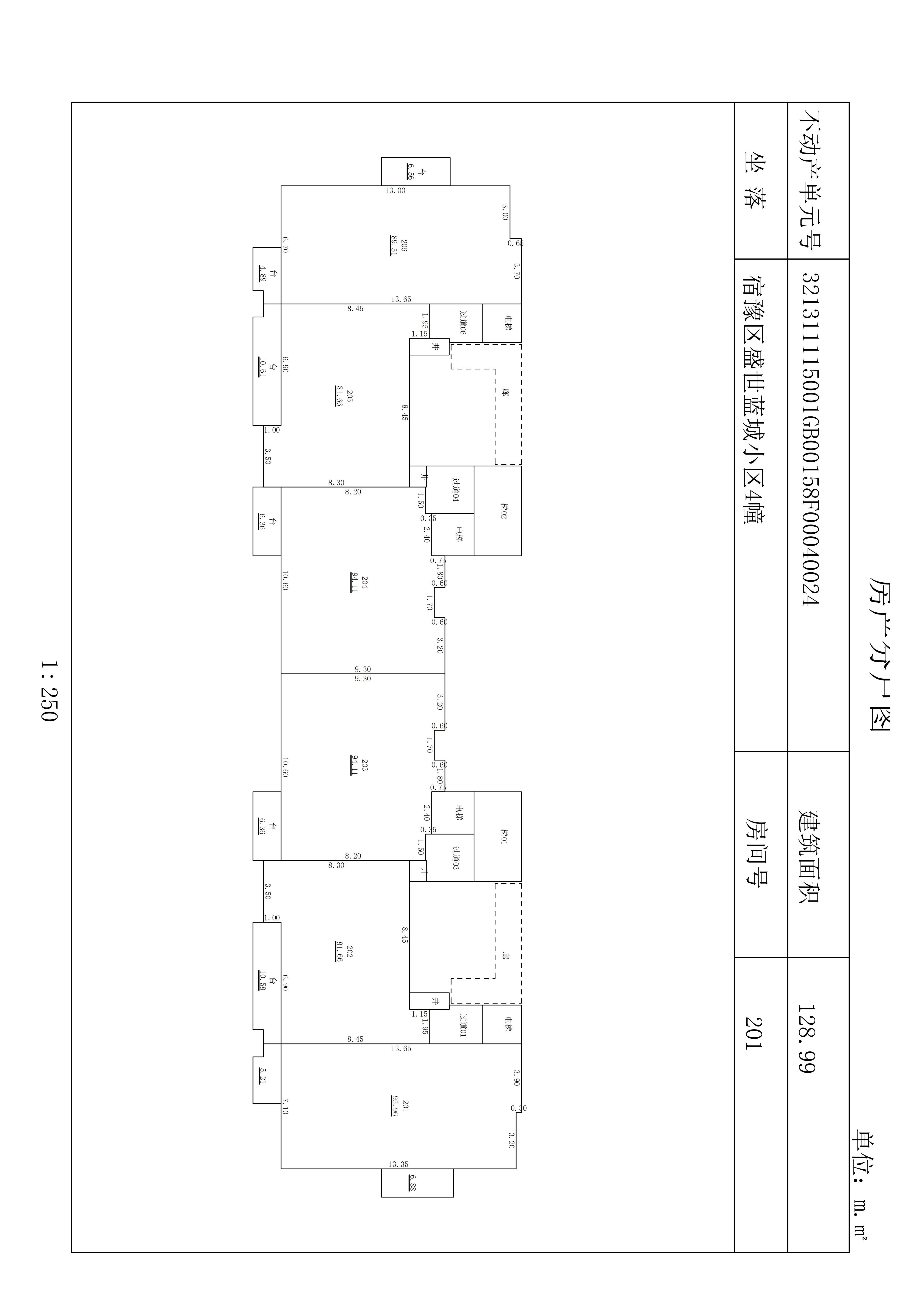
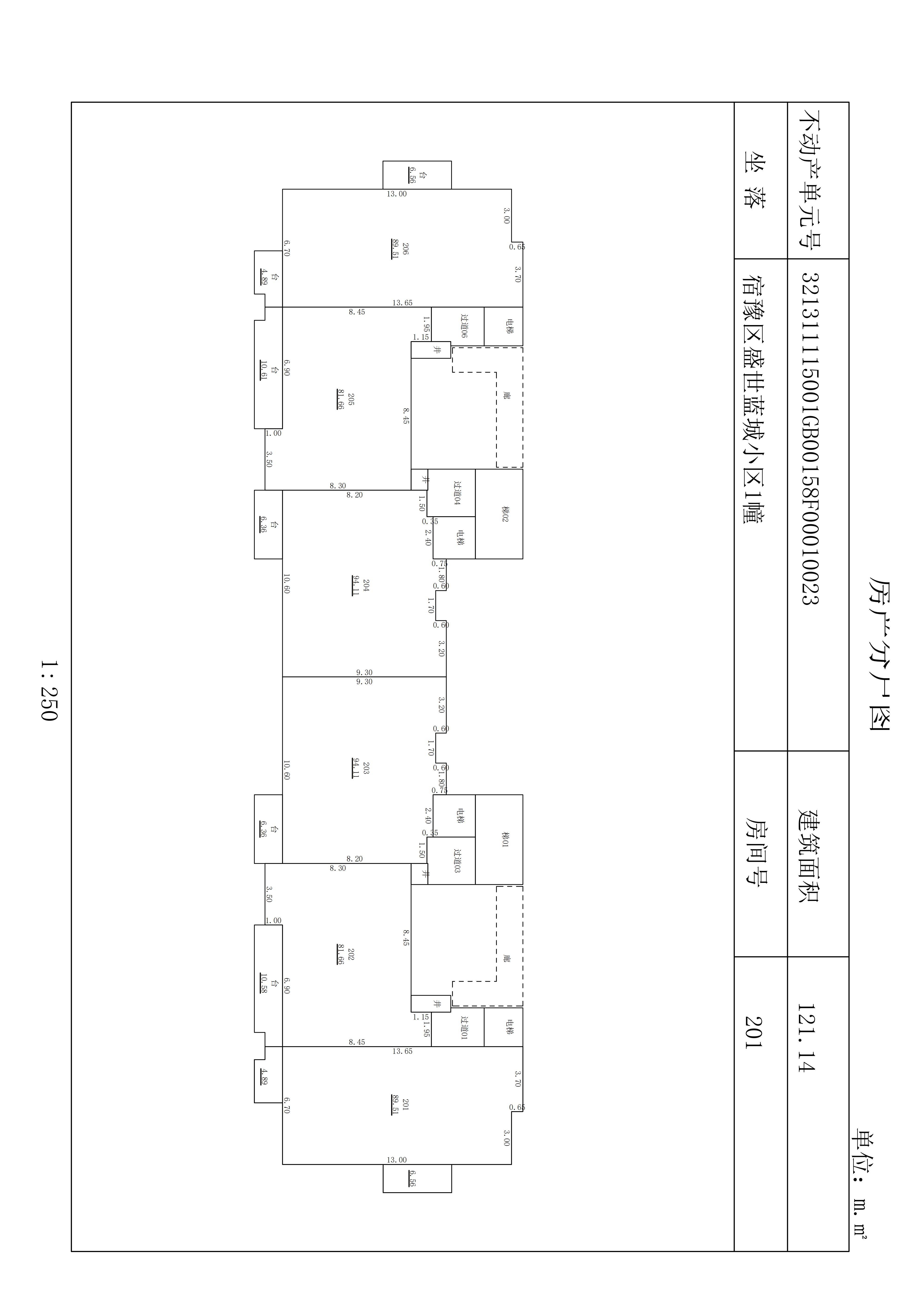
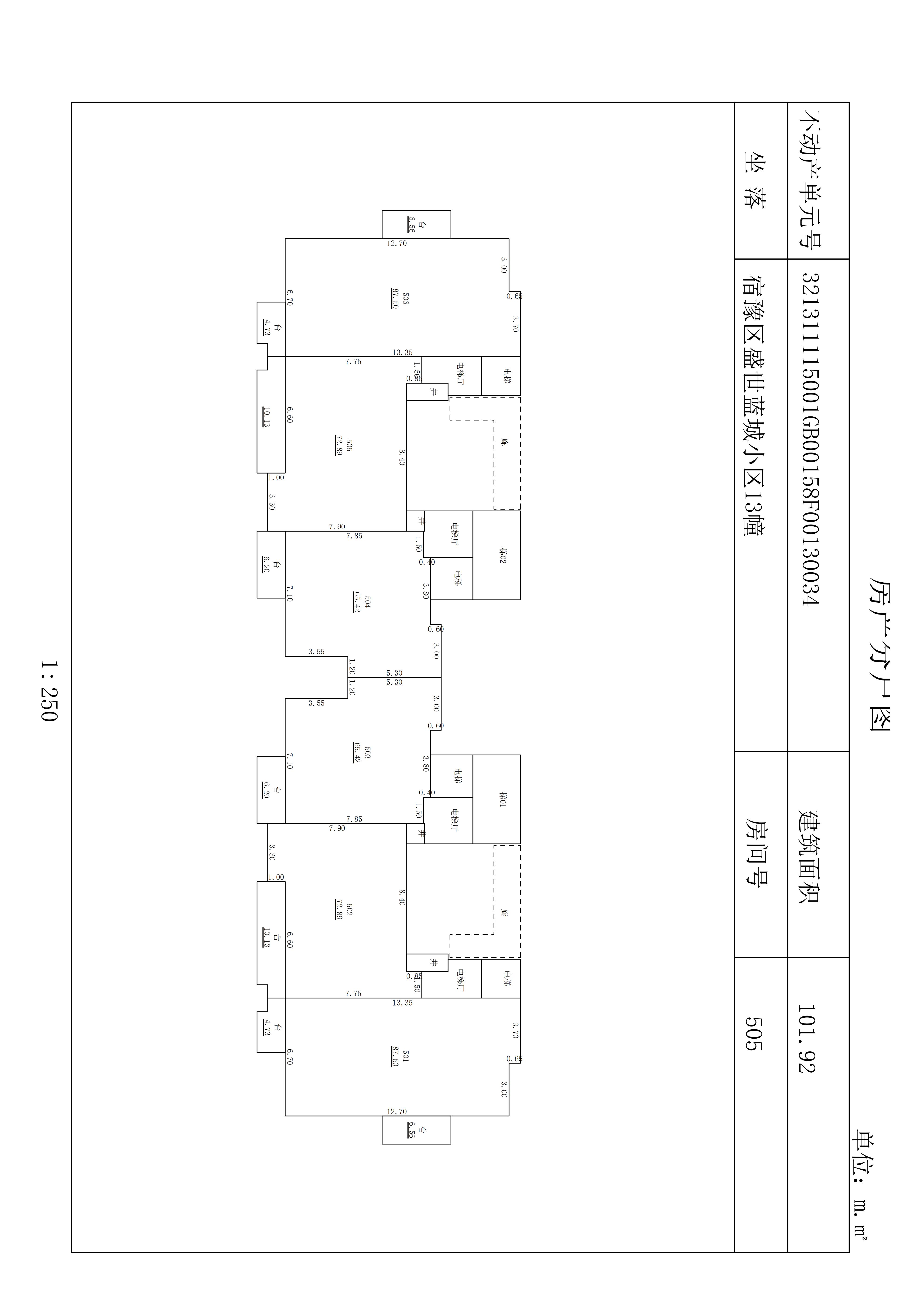
户型图
盛世蓝城
绿化率 : 35.02%
容积率 : 2.20
规划户数 : 2424
推荐
恒开国际购物公园
红星凯盛建材市场
红星凯盛国际纺织城
盛世家园
没有了
没有了
×
长按屏幕识别二维码
打开手机扫描二维码
×
×
请选择一种导航方式
无雀科技 版权所有